產品說明
XV型振動電機是我公司在XTD、XTDA系列產品的基礎上,吸收歐洲*新技術,經過我公司科研人員的多次創新,研發出的優質產品。具有重量輕、體積小、激振力強大,密封性能好、數字式激振力調整更方便,絕緣及防護等級更高等特點。已達到國內**水平。
XV型振動電機特點:
1.通過調整偏心塊的夾角可以方便地無*調節振動力。
2.用拉伸鋼板鍍鋅之成的封閉防護罩。
3.用進口V型環河脂槽對軸承進行密封。
4.用O型圈進行密封防止粉塵進入。
5.線圈進行特殊滲漆處理的方式進行安裝。
6.結實的軸承座用來傳遞振動力。
7.澆鑄的吊環使得在任何位置上都能既方便又安全地進行裝配。
8.機殼為精密鑄件,全封閉、耐振。
9.專用金屬出線加緊接頭,有效防止電纜振動破壞。
10.固定澆鑄的接線盒能經受*嚴峻的環境的考驗,具有防塵和防水的功能。
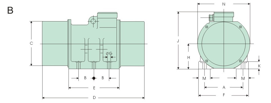
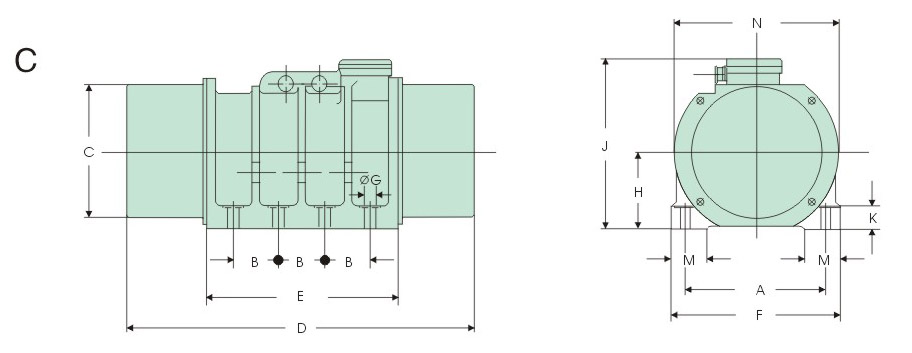
XV型振動電機技術參數:



